【成約済】 【新築戸建】 朝霧駅 明石市朝霧東町 朝霧小学校区 - 過去掲載物件
JR山陽本線朝霧駅まで徒歩12分と駅近で便利!
- 価格
- **** 万円
- 所在地 / 交通
-
兵庫県明石市朝霧東町2丁目
JR神戸線(神戸~姫路)「朝霧」駅 徒歩12分
- 間取り / 面積
-
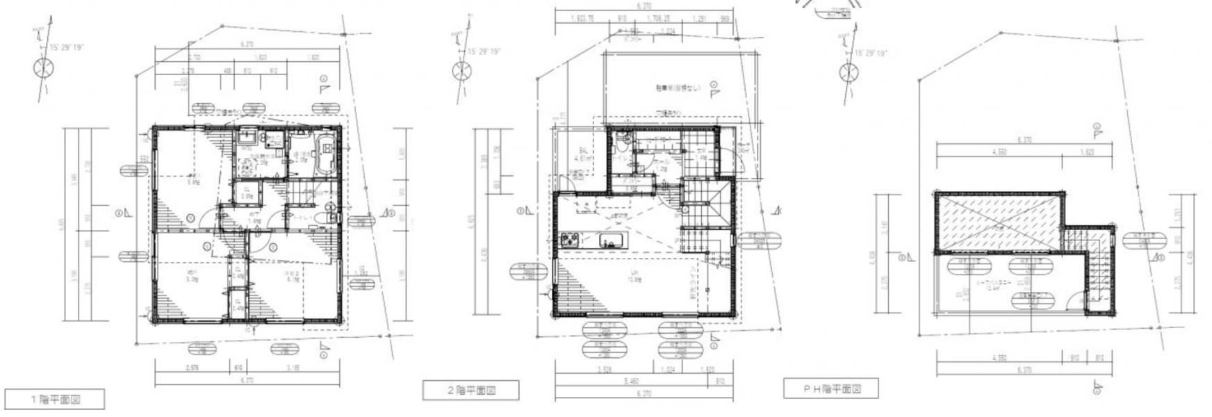
3LDK
85.01㎡
物件概要
| 管理番号 | K02025 | 情報更新日 | 2025年09月29日 |
|---|---|---|---|
| 種別 / 構造 | 新築一戸建 / 木造 | ||
| 所在地 | 兵庫県明石市朝霧東町2丁目 | ||
| 交通 |
|
||
| 間取り / 詳細 | 3LDK | ||
| 小学校区 | 朝霧小学校区 | 中学校区 | 朝霧中学校区 |
| 土地面積 | 93.9㎡ | 土地面積 (坪数) | 28.4坪 |
| 面積計測方法 | 実測 | 私道負担面積 | 有 |
| セットバック | 有 | 再建築 | |
| 建物面積 | 85.01㎡ | 建物面積 (坪数) | 25.72坪 |
| 各階数面積 | 1F:43.47㎡ 2F:38.02㎡ | 投資・実需 | |
| 価格 | ****万円 | 坪単価 | |
| 土地権利 | 所有権 | 国土法届出要否 | |
| 都市計画 | 市街 | 用途地域 | 一低 |
| 建ぺい率 | 60% | 容積率 | 100% |
| 建物階数 | 2階 | 総区画数 | |
| 地勢 | 低地 | 地目 | 宅地 |
| 水道 | 排水 | ||
| ガス | 建築条件 | ||
| 現況 | 完成済み | 引渡し | 即時 |
| 引渡時期 | 2022年8月 下旬 | 建築日 | 2022年7月 |
| 建築番号 | 第HK21-0600号 | 取引態様 | 媒介 |
| 接道状況 |
一方 私道 東 2.8m |
||
| 設備条件 |
|
||
| その他法令上の制限 | |||
| 備考 | |||
| お問い合わせ |
明石市で物件探しをお考えなら、住宅情報が満載の不動産・住宅情報サイト神明住建にお任せ下さい。
(稲美町・播磨町・神戸市西区)中古一戸建て、中古マンションから新築一戸建てまで、お客様目線での不動産探しを心がけております。
明石でのお家探し、不動産の買取・売却査定・売却相談、中古住宅・一軒家・明石の不動産屋・土地・建築条件無し土地・一戸建て情報が満載の中から検索して下さい。 ● まずはお気軽にお電話下さい。 株式会社神明住建はホームページにて毎日物件更新中!! 毎週末オープンハウス開催中!是非お気軽にご来場ください。 定休日:毎週水曜日 / 第1木曜日 ■ 9:00~19:00まで営業!! お問い合わせはこちら |
||
| 取扱会社 |
|
||
※地図上に表示される物件の位置は付近住所に所在することを表すものであり、実際の物件所在地とは異なる場合がございます。





















